0803 Diverse particuliere woonhuizen30-03-2018
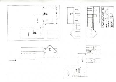
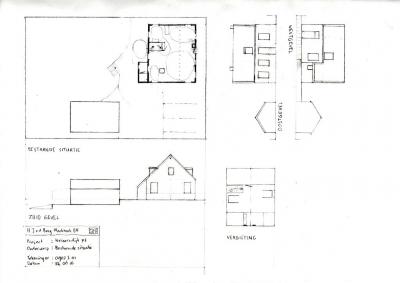
In de afgelopen jaren heeft Henk Jan van den Berg een aantal particulieren op weg geholpen met hun ideeën om hun woonhuis te gaan verbouwen. Het is vaak leuk om met elkaar te achterhalen wat mensen nu eigenlijk willen bereiken met hun verbouwing. Het komt nog al eens voor dat het een reactie is op iets wat irriteert in de bestaande situatie. Maar bij relatief forse investeringen is het wel zaak dat het daarna naar je zin is. Vervolmaken is iets anders dan de bron van de irritatie wegnemen. Dan is het goed dat er een buitenstaander is, die vragen stelt waar de initiatiefnemers nog niet aan hebben gedacht. Soms komen partners er niet met elkaar uit, ook dan kan zo’n mediator verhelderende inzichten geven. Met een duidelijke doelstelling is de volgende uitdaging om dit mooi vorm te geven en liefst zo voordelig mogelijk. Dat vereist onder andere inzicht in de constructie en de installaties om onverwachte kosten te voorkomen. Als je specialisten of een degelijke (onder)aannemer wilt inhuren, dan kan het handig zijn, als een ervaren bouwmanager je helpt met het aansturen en contracteren van die partijen, of het geheel van je overneemt, of voor een second opinion als je al (uitgewerkte) plannen hebt. Ook bij het aanvragen van vergunningen kan Henk Jan van den Berg behulpzaam zijn. Hij kan je helpen je dromen waar te maken. Uiteraard kost een bouwmanager geld. Geld dat je vervolgens niet kunt besteden aan de werkelijke verbouwing. Maar het ontlast je wel in een drukke periode en verkleind de kans op misverstanden die veel geld kunnen kosten of tijd, waardoor je pas later van je woning kunt gaan genieten. Weet dat Henk Jan van den Berg een ervaren en betrokken bouwmanager is, die jouw project in goede banen leidt. Zijn ambitie is om dat waar te maken waar je alleen maar van durft te dromen. Geen project is het zelfde. Dat maakt het voor hem juist uitdagend. Enkele voorbeelden van projecten, waar hij een rol in heeft mogen spelen. 1.Een ouder echtpaar wilde een grotere woonkamer voor als de kleinkinderen komen. Maar een uitbouw ten koste van de tuin stond hen tegen. De oplossing: het verplaatsen van de voordeur en de trap, waardoor er een ruime woonkamer is ontstaan en bovendien is deze ingreep ook nog eens goedkoper. 2.Een stel op een pittoresk plekje wilde meer ruimte voor hun opgroeiend kroost, maar waren onderling niet eens of ze er zouden blijven wonen. Daarom moest de waardestijging van het pand opwegen tegen de verbouwingskosten. Om hun wensen te realiseren moest er behoorlijk wat gerenoveerd, gesloopt en opgebouwd worden zonder dat het karakter aangetast mocht worden. Ze hadden bedacht om de garage met het huis te verbinden en die dan als woonruimte mee te tellen. Of dat volgens het bestemmingsplan mag, moest nader worden onderzocht. Het ontwikkelen van plannen kost geld zonder dat het financieel gelijk wat oplevert. Na een goed bod hebben ze besloten om toch te verhuizen. |
