0901 Realisatie Groepswoning Strijen01-04-2018
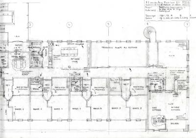
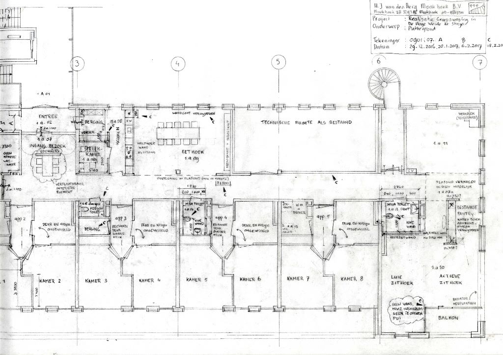
Van de afdeling Kortdurend Verblijf met 6 appartementen werd te weinig gebruik gemaakt en de verwachting was dat met de oplevering van het revalidatiecentrum in Oud-Beijerland de bezetting nog minder zou worden. Om dat er wel vraag was naar huisvesting voor mensen met dementie werd Henk Jan van den Berg in het voorjaar 2016 benaderd voor een haalbaarheidsonderzoek. Vanuit zijn samenwerking met BreinCollectief had hij er een hard hoofd in, dat daar een goede groepswoning van te maken was. Het lag op de eerste verdieping, zonder buitenruimte met een lange gang, die aan één zijde wordt geflankeerd door een technische ruimte. Erg saai. De enige mogelijkheden om een woonkamer te maken waren aan de noordgevel gepositioneerd. Voor het kantoor van de thuiszorg en de fysiotherapie ruimte moest er dan eerst nog wel een andere ruimte gevonden worden. De enige zone die direct te annexeren was leken de kleedruimten. Totdat het besef doordrong dat mensen met dementie liever niet te veel ruimte voor zichzelf hebben. Door een appartement op te delen in twee slaapkamers met een gemeenschappelijke badkamer kon er een groepswoning voor 8 mensen in plaats van 6 gerealiseerd worden. Zodoende konden er twee appartementen worden vrijgespeeld. Het appartement aan de westzijde kon gehandhaafd blijven voor kortdurend verblijf. Het appartement aan de oostzijde heeft een buitenruimte en vormt de ideale lichte woonkamer om 's ochtends actief te worden. De gang vormt nu een logische relatie tussen de woonkamer en de eetkeuken. Binnen twee weken lag het definitieve haalbaarheidsonderzoek met 7 scenario’s inclusief kostenraming bij de opdrachtgever. Na het nodige overleg met betrokken partijen waren de fysiotherapeut en de thuiszorg blij dat ze naar de begane grond konden verhuizen en de planners dat ze naar boven mochten. In december 2016, nadat het goedkeuren van de jaarbegroting is het project weer opgepakt. Uitwerken, aanbesteden, opdracht verstrekken, werk voorbereiden, uitvoeren en eind maart opleveren. Dit hele traject is binnen vier maanden doorlopen. Niet dat het een makkie was. Het afkoppelen van de douches, toiletten en keukenblokken moest wel goed gebeuren om geen legionella probleem te veroorzaken. De ingang van de slaapkamers is proefondervindelijk vastgesteld om de bedtoegankelijkheid te garanderen. Daarnaast spelen bij dit soort projecten de brandweervoorzieningen altijd een grote rol. En als je volgens de ideeën van het BreinCollectief wilt werken zul je ook de nodige aandacht aan de beleving moeten besteden. De medewerkers dachten goed mee en zo is er onder andere een koof boven de kookplaat gekomen en zijn de kabelgoten uit het zicht genomen door bredere vensterbanken. Op hun voorstel is ook een wand verwijderd om het zicht op de groep vanuit de pantry te verbeteren. |
