0503 Woonzorgcentrum in Geldermalsen04-04-2018
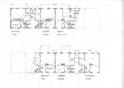
Van 2012 tot en met 2016 is Henk Jan van den Berg als bouwmanager namens Leven Vastgoed betrokken geweest bij de ontwikkeling van het Stationsgebied in Geldermalsen. Op basis van het bestemmingsplan is samen met Rothuizen architecten een plan ontwikkeld voor 6 groepswoningen, 40 aanleunwoningen met een multifunctioneel plint en 21 één persoonsappartementen voor mensen met een verhoogde kans op psychoses. Uitgaande van een prefab systeem is het plan binnen 6 maanden te bouwen en te bewonen, een hoge kwaliteit gewaarborgd en zijn de bouwkosten passend voor de sociale huursector. In dit project is voor de groepswoningen voor het eerst gebruik gemaakt van het op initiatief van Henk Jan van den Berg doorontwikkelde Rompmodel, een unit met twee groepswoningen conform het gedachtegoed van Breincollectief. Dit Rompmodel met een vrij indeelbare begane grondvloer leent zich uitstekend om een goed herkenbare beleefwereld te creëren en door haar compacte opzet is er voldoende (financiële) ruimte voor toevoegingen en verfraaiingen om ook de buitenzijde een daar op aansluitende beleving mee te geven. Na een historisch onderzoek naar de achtergrond van de potentiële bewoners is het beeld ontstaan dat in hun kinderjaren de mensen in Geldermalsen veelal op een grote herenboerderij woonden, of op een keuterboerderijtje, dan wel in een dijkwoninkje, Er waren relatief weinig stadse huizen. Uitgaande van dat gegeven heeft Henk Jan van den Berg een zestal leefstijlgroepen bedacht en samen met Lensen Projectinrichters uitgewerkt. Het thema van de leefstijlgroepen is ook doorgetrokken naar de tuininrichting: met een formele tuin achter de herenboerderij, een boerenerf bij de keuterboerderijen en een platje met zicht op het land achter de dijkwoningen. Met tuinkamers, bijkeukens en waslijnen is de overgang van binnen naar buiten vergemakkelijkt door duidelijk afleesbare ruimten te creëren, die de bewoners verleiden naar buiten te gaan. Eenmaal buiten kunnen de bewoners vrij bewegen. Uitgaande van het gegeven dat mensen met dementie vooral rechtdoor lopen, komen de mensen altijd weer uit bij het woonblok als ze het pad volgen. Zonder de terreinafscheiding als belemmering te ervaren. De belangrijkste route loopt achter de groepswoningen langs van het ene boerenerf naar het andere, waar de stal en het kippenhok de beloning vormen en een logisch keerpunt. Doordat iedere groepswoning uniek is met een eigen uitstraling en indeling, wordt de herkenbaarheid van de eigen woning vergroot. De twee- en éénpersoons appartementen zijn compact maar rolstoeltoegankelijk. De speciaal voor deze appartementen ontwikkelde bouwmethodiek maakt het in de toekomst mogelijk om twee appartementen samen te trekken tot één royaal appartement en biedt de vrijheid om balkons en loggia’s toe te passen, waar men dat maar wil. Het Rompmodel en de appartement-concepten zijn zo flexibel dat we binnen twee maanden na ons eerste contact met Welstand al goedkeuring op ons plan ontvingen. |
